Property Description

Set amid 53 acres of protected Virginia countryside in the heart of The Plains, Look Up Farm stands among the Capital Region’s most remarkable private estates. Surrounded by blue ridge mountain vistas on the front of the home, while the back of the home enjoys rolling pastures and horses grazing in the distance, pastoral countryside views and hay bales resting on the land in spring and fall. The property evokes the character of an upper-crust Colonial-era estate. Completed in 2020 through the collaboration of Potomac Valley Builders and Foster Zimmerman Architects, the home achieves a level of refinement rarely encountered among newly built country properties. A long, sweeping approach to the main farmhouse reveals a façade of vibrant old world stone and clap board beneath a slate and metal roof, accented by copper gutters and custom milled wood shutters. Windsor windows frame pastoral views in every direction, while balanced proportions and classical symmetry establish an immediate sense of quiet authority. The traditional center hall foyer introduces 11,850 finished square feet of living space arranged with clarity and intention. A dramatic double-height stair hall, crowned by a Ralph Lauren lantern with lift, serves as the central axis from which formal and informal rooms unfold with intuitive flow. The great room centers on an Isokern Bvetto fireplace and opens seamlessly to the expansive rear terrace. Craftsmanship is evident throughout, from ten-inch-wide French oak flooring to substantial one-and-a-quarter-inch TruStile paneled doors finished with Emtek hardware. Refined millwork establishes a gallery-like backdrop for bespoke lighting by Visual Comfort, Urban Electric, Hector Finch, and other noted makers. Select spaces introduce moments of depth and character. The stately library, finished in Farrow & Ball De Nimes Blue, provides a moody and sophisticated retreat after evenings of entertaining. Opposite, the formal dining room is positioned along a transverse gallery that gracefully separates the home’s formal entertaining areas from its more relaxed living spaces. At the heart of the residence lies the chef’s kitchen, designed to accommodate both daily living and large-scale entertaining. Custom inset cabinetry and Vermont Danby marble frame a substantial center island, while a Wolf dual-fuel range anchors a comprehensive appliance suite complemented by integrated Sub-Zero refrigeration and a built-in espresso system. A fully appointed butler’s pantry with additional appliances and preparation space further enhances the kitchen’s functionality. The main-level primary suite occupies a private wing of the home and offers direct terrace access, a masonry fireplace, generous dressing space, and a spa-inspired bath finished in marble with a glass-enclosed shower and built-in soaking tub. A separate main-level guest suite functions as fully independent living quarters, featuring two ensuite bedrooms, two full baths, a dedicated office, a full kitchen, a fireplace, a formal powder room off the mudroom, a utility space, and a covered porch. This arrangement offers exceptional flexibility for multigenerational living or extended guest stays. Upstairs, four additional bedroom suites each feature en suite baths and walk-in closets, including one distinguished by a soaring vaulted ceiling crowned with a chandelier. A sitting room, wet bar, and secondary laundry complete the upper level. In total, the residence includes eight bedrooms, nine full baths, and three half baths. The lower level is designed for leisure and gathering. Richly toned in Midnight Blue, the space is anchored by a recreation room with a full wet bar and complemented by a dedicated home theater featuring a Stewart Filmscreen, Sony projector, enhanced sound insulation, and Savant controls, with integrated audiovisual systems implemented by A.B.E. Networks. An exercise room, additional bath, and separate bunk rooms complete the level, with direct access to the lower terrace. Behind the scenes, the estate is comprehensively engineered. An all-level elevator, whole-house generator, Carrier Whisper Quiet HVAC system, Crimpco security system, and whole-house Sonos audio are seamlessly integrated through Savant home automation. Four fireplaces with remote log sets, LiftMaster garage doors with mobile access, and a four-car attached garage further underscore the home’s thoughtful blend of traditional design and modern technology. At dusk, exterior fixtures by Troy RLM and McLean Lighting cast a warm, understated glow across the residence, reinforcing the home’s timeless architectural character. The surrounding acreage unfolds as sweeping lawns, mature tree lines, and expansive vistas characteristic of this storied equestrian region. The land invites a range of possibilities, from private riding trails to curated gardens, while preserving a sense of privacy and tranquility. Despite its pastoral setting, the estate remains within convenient reach of Middleburg and the greater Washington metropolitan area. With its scale, architectural integrity, curated finishes, and advanced systems, Look Up Farm stands as a rare offering. It is a newly built country estate that honors classical design while delivering the expectations of modern living, crafted not simply as a residence but as a generational property of lasting significance within one of Virginia’s most enduring landscapes.
Set amid 53 acres of protected Virginia countryside in the heart of The Plains, Look Up Farm stands among the Capital Region’s most remarkable private estates. Surrounded by blue ridge mountain vistas on the front of the home, while the back of the home enjoys rolling pastures and horses grazing in the distance, pastoral countryside views and hay bales resting on the land in spring and fall. The property evokes the character of an upper-crust Colonial-era estate. Completed in 2020 through the collaboration of Potomac Valley Builders and Foster Zimmerman Architects, the home achieves a level of refinement rarely encountered among newly built country properties. 
 
A long, sweeping approach to the main farmhouse reveals a façade of vibrant old world stone and clap board beneath a slate and metal roof, accented by copper gutters and custom milled wood shutters. Windsor windows frame pastoral views in every direction, while balanced proportions and classical symmetry establish an immediate sense of quiet authority.
 
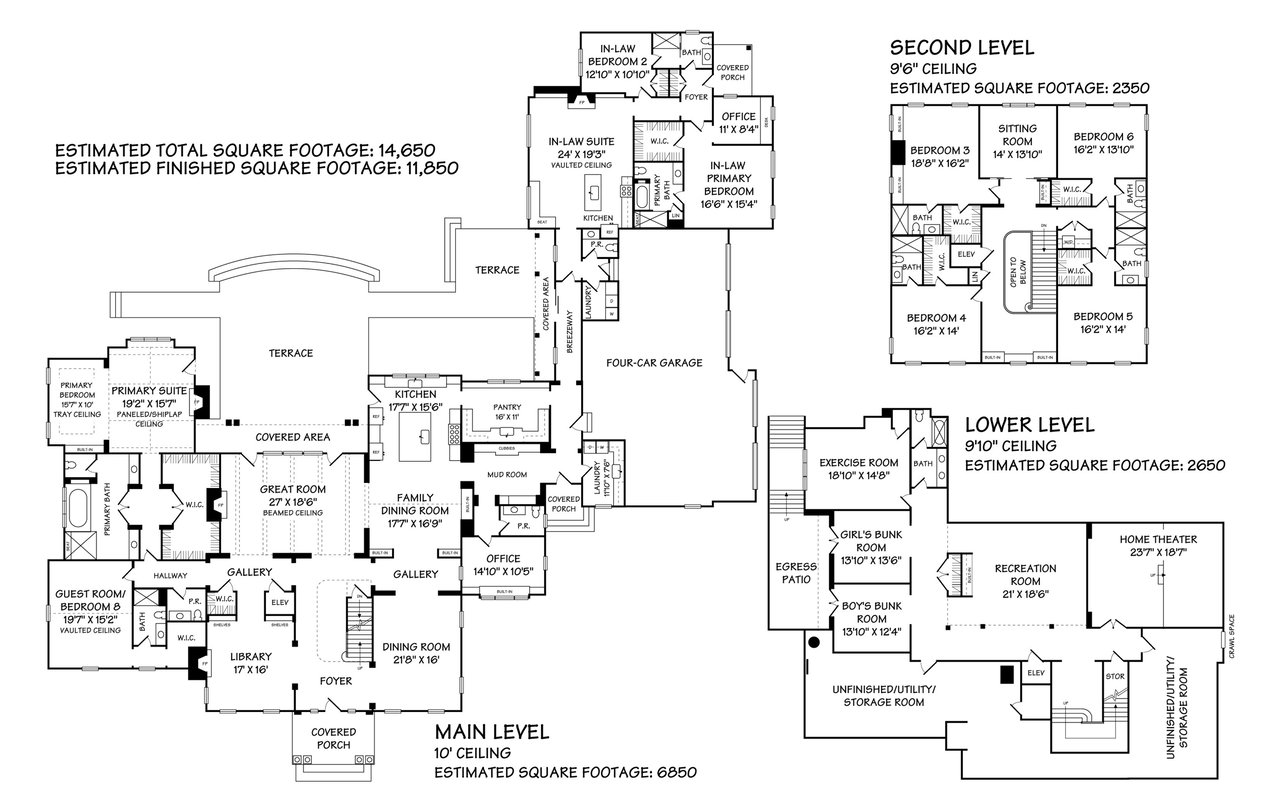
The traditional center hall foyer introduces 11,850 finished square feet of living space arranged with clarity and intention. A dramatic double-height stair hall, crowned by a Ralph Lauren lantern with lift, serves as the central axis from which formal and informal rooms unfold with intuitive flow.
 
The great room centers on an Isokern Bvetto fireplace and opens seamlessly to the expansive rear terrace. Craftsmanship is evident throughout, from ten-inch-wide French oak flooring to substantial one-and-a-quarter-inch TruStile paneled doors finished with Emtek hardware. Refined millwork establishes a gallery-like backdrop for bespoke lighting by Visual Comfort, Urban Electric, Hector Finch, and other noted makers.
 
Select spaces introduce moments of depth and character. The stately library, finished in Farrow & Ball De Nimes Blue, provides a moody and sophisticated retreat after evenings of entertaining. Opposite, the formal dining room is positioned along a transverse gallery that gracefully separates the home’s formal entertaining areas from its more relaxed living spaces.
 
At the heart of the residence lies the chef’s kitchen, designed to accommodate both daily living and large-scale entertaining. Custom inset cabinetry and Vermont Danby marble frame a substantial center island, while a Wolf dual-fuel range anchors a comprehensive appliance suite complemented by integrated Sub-Zero refrigeration and a built-in espresso system. A fully appointed butler’s pantry with additional appliances and preparation space further enhances the kitchen’s functionality.
 
The main-level primary suite occupies a private wing of the home and offers direct terrace access, a masonry fireplace, generous dressing space, and a spa-inspired bath finished in marble with a glass-enclosed shower and built-in soaking tub.
 
A separate main-level guest suite functions as fully independent living quarters, featuring two ensuite bedrooms, two full baths, a dedicated office, a full kitchen, a fireplace, a formal powder room off the mudroom, a utility space, and a covered porch. This arrangement offers exceptional flexibility for multigenerational living or extended guest stays.
 
Upstairs, four additional bedroom suites each feature en suite baths and walk-in closets, including one distinguished by a soaring vaulted ceiling crowned with a chandelier. A sitting room, wet bar, and secondary laundry complete the upper level. In total, the residence includes eight bedrooms, nine full baths, and three half baths.
 
The lower level is designed for leisure and gathering. Richly toned in Midnight Blue, the space is anchored by a recreation room with a full wet bar and complemented by a dedicated home theater featuring a Stewart Filmscreen, Sony projector, enhanced sound insulation, and Savant controls, with integrated audiovisual systems implemented by A.B.E. Networks. An exercise room, additional bath, and separate bunk rooms complete the level, with direct access to the lower terrace.
 
Behind the scenes, the estate is comprehensively engineered. An all-level elevator, whole-house generator, Carrier Whisper Quiet HVAC system, Crimpco security system, and whole-house Sonos audio are seamlessly integrated through Savant home automation. Four fireplaces with remote log sets, LiftMaster garage doors with mobile access, and a four-car attached garage further underscore the home’s thoughtful blend of traditional design and modern technology.
 
At dusk, exterior fixtures by Troy RLM and McLean Lighting cast a warm, understated glow across the residence, reinforcing the home’s timeless architectural character.
 
The surrounding acreage unfolds as sweeping lawns, mature tree lines, and expansive vistas characteristic of this storied equestrian region. The land invites a range of possibilities, from private riding trails to curated gardens, while preserving a sense of privacy and tranquility. Despite its pastoral setting, the estate remains within convenient reach of Middleburg and the greater Washington metropolitan area.
 
With its scale, architectural integrity, curated finishes, and advanced systems, Look Up Farm stands as a rare offering. It is a newly built country estate that honors classical design while delivering the expectations of modern living, crafted not simply as a residence but as a generational property of lasting significance within one of Virginia’s most enduring landscapes.

 

Set amid 53 acres of protected Virginia countryside in the heart of The Plains, Look Up Farm stands among the Capital Region’s most remarkable private estates. Surrounded by blue ridge mountain vistas on the front of the home, while the back of the home enjoys rolling pastures and horses grazing in the distance, pastoral countryside views and hay bales resting on the land in spring and fall. The property evokes the character of an upper-crust Colonial-era estate. Completed in 2020 through the collaboration of Potomac Valley Builders and Foster Zimmerman Architects, the home achieves a level of refinement rarely encountered among newly built country properties. A long, sweeping approach to the main farmhouse reveals a façade of vibrant old world stone and clap board beneath a slate and metal roof, accented by copper gutters and custom milled wood shutters. Windsor windows frame pastoral views in every direction, while balanced proportions and classical symmetry establish an immediate sense of quiet authority. The traditional center hall foyer introduces 11,850 finished square feet of living space arranged with clarity and intention. A dramatic double-height stair hall, crowned by a Ralph Lauren lantern with lift, serves as the central axis from which formal and informal rooms unfold with intuitive flow. The great room centers on an Isokern Bvetto fireplace and opens seamlessly to the expansive rear terrace. Craftsmanship is evident throughout, from ten-inch-wide French oak flooring to substantial one-and-a-quarter-inch TruStile paneled doors finished with Emtek hardware. Refined millwork establishes a gallery-like backdrop for bespoke lighting by Visual Comfort, Urban Electric, Hector Finch, and other noted makers. Select spaces introduce moments of depth and character. The stately library, finished in Farrow & Ball De Nimes Blue, provides a moody and sophisticated retreat after evenings of entertaining. Opposite, the formal dining room is positioned along a transverse gallery that gracefully separates the home’s formal entertaining areas from its more relaxed living spaces. At the heart of the residence lies the chef’s kitchen, designed to accommodate both daily living and large-scale entertaining. Custom inset cabinetry and Vermont Danby marble frame a substantial center island, while a Wolf dual-fuel range anchors a comprehensive appliance suite complemented by integrated Sub-Zero refrigeration and a built-in espresso system. A fully appointed butler’s pantry with additional appliances and preparation space further enhances the kitchen’s functionality. The main-level primary suite occupies a private wing of the home and offers direct terrace access, a masonry fireplace, generous dressing space, and a spa-inspired bath finished in marble with a glass-enclosed shower and built-in soaking tub. A separate main-level guest suite functions as fully independent living quarters, featuring two ensuite bedrooms, two full baths, a dedicated office, a full kitchen, a fireplace, a formal powder room off the mudroom, a utility space, and a covered porch. This arrangement offers exceptional flexibility for multigenerational living or extended guest stays. Upstairs, four additional bedroom suites each feature en suite baths and walk-in closets, including one distinguished by a soaring vaulted ceiling crowned with a chandelier. A sitting room, wet bar, and secondary laundry complete the upper level. In total, the residence includes eight bedrooms, nine full baths, and three half baths. The lower level is designed for leisure and gathering. Richly toned in Midnight Blue, the space is anchored by a recreation room with a full wet bar and complemented by a dedicated home theater featuring a Stewart Filmscreen, Sony projector, enhanced sound insulation, and Savant controls, with integrated audiovisual systems implemented by A.B.E. Networks. An exercise room, additional bath, and separate bunk rooms complete the level, with direct access to the lower terrace. Behind the scenes, the estate is comprehensively engineered. An all-level elevator, whole-house generator, Carrier Whisper Quiet HVAC system, Crimpco security system, and whole-house Sonos audio are seamlessly integrated through Savant home automation. Four fireplaces with remote log sets, LiftMaster garage doors with mobile access, and a four-car attached garage further underscore the home’s thoughtful blend of traditional design and modern technology. At dusk, exterior fixtures by Troy RLM and McLean Lighting cast a warm, understated glow across the residence, reinforcing the home’s timeless architectural character. The surrounding acreage unfolds as sweeping lawns, mature tree lines, and expansive vistas characteristic of this storied equestrian region. The land invites a range of possibilities, from private riding trails to curated gardens, while preserving a sense of privacy and tranquility. Despite its pastoral setting, the estate remains within convenient reach of Middleburg and the greater Washington metropolitan area. With its scale, architectural integrity, curated finishes, and advanced systems, Look Up Farm stands as a rare offering. It is a newly built country estate that honors classical design while delivering the expectations of modern living, crafted not simply as a residence but as a generational property of lasting significance within one of Virginia’s most enduring landscapes.
Show more
01

Interior

Total Bedrooms

8

Full Bathrooms

9

Half Bathrooms

3
01

Lot & Area

Status

Private Listing

Living Area

11,850 Sq.Ft.

Lot Size

53.72 Acres
Daniel Heider

EM

Daniel Heider

CEO & Founder

Let’s connect

Thank you for your message

We will be in touch with you shortly

name

Thank you for your message

We will be in touch with you shortly

Let’s connect

Follow Me On Instagram